Skip to main content

Paul Revere Garage

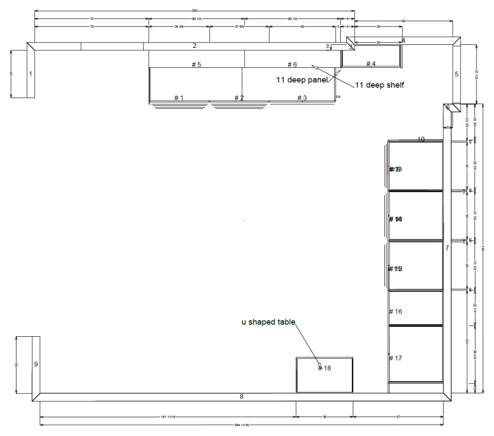
Garage Space reimagined into a functional space that now serves as a combined laundry and pantry with a clean and custom design. This garage features clean lines, and ample built-in storage.